Referencia: 3042-H
Implemento Volcador de contenedores
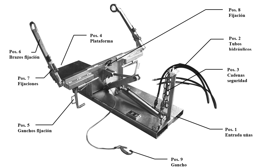
Descripción
Los volteadores perfectos para el transporte, vaciado y limpieza de grandes recipientes (800 y 1.100 litros con 4 ruedas). Diseño robusto con enganches para una perfecta sujeción del contenedor. Cadena de seguridad para impedir que el volteador deslice por las uñas de la carretilla. Un cable de acero para sujeción de la tapa del contenedor. El volteo es controlado en todo momento por la elevación de las uñas de la carretilla y del sistema hidráulico (130 bar.). Posee una válvula de regulación para regular la velocidad del volteo del contenedor. Fabricado en galvanizado según EN ISO 1461. Marcado CE. Posibilidad de fabricación a medida (distintas medidas).
También llamado:
Volteador de cubos de basura.
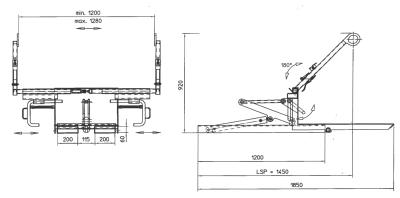
Datos técnicos
| Referencia | 3042-H |
| Carga Kg | 1.850 x 1.390 x 650 Cubo 800-1.100 L. |
Documentación


.jpg)

